Zieleniec - działka z PnB, 2 budynki 15 apartamentów











działka budowlana • na sprzedaż • Duszniki-Zdrój • ul. Zieleniec
2 200 000 zł
• 3118 m²
706 zł za m2
706 zł za m2
Kontakt
Zieleniec - niegdyś najwyżej położona wieś w Sudetach, obecnie dzielnica Dusznik-Zdroju;
najbardziej znany ośrodek narciarski w Kotlinie Kłodzkiej w zimie (ponad 20 wyciągów i 6 kolei linowych) i rowerowy w lecie - liczne zawody narciarskie, snowboardowe, rowerowe, zloty motocyklowe, cykliczne festyny itp., szlaki turystyczne, biegówkowe i rowerowe po polskiej i czeskiej stronie. Jedyne miejsce w Polsce z rewelacyjnym zdrowotnie mikroklimatem podobnym do alpejskiego. Słynne unikalne Torfowisko, nowa wieża widokowa na Orlicy, itd., itd..
Inne atrakcje do poczytania na stronie www.zieleniec.pl. Kto by tam nie znał Zieleńca ;-)
Do sprzedania działka 3118 m2 z prawomocną decyzją o pozwoleniu na budowę dwóch budynków apartamentowych wraz z infrastrukturą towarzyszącą.
Położenie na początku Zieleńca, w okolicy niedawno otwartego "Przystanku Alaska" czy domków "Campo resort", kolejne domki właśnie powstają.
Działka ma wjazd z głównej drogi biegnącej przez Zieleniec (DK389 "Autostrada Sudecka") przez wydzieloną i wykonaną już drogę wewnętrzną (mapka). Teren ma lekki skłon w kierunku północno-wschodnim (od szosy w dół w kierunku lasu), apartamenty na górnych kondygnacjach budynków będą miały widok na pasma okalające Kotlinę kłodzką.
W odległości 300-400 m pierwsze wyciągi - kompleks narciarski "Mieszko" i "Hotel Zieleniec", jeden z największych obiektów noclegowych w miejscowości (restauracja, kręgielnia).
Mniej niż 50 m do ratrakowanych tras biegowych po drugiej stronie szosy - w miejscu oznaczonym "Kamieniem Rübartscha" naprzeciw "Alaski" zaczyna się szlak na Orlicę, najwyższy szczyt polskiej części Gór Orlickich, gdzie powstała nowa wieża widokowa i znajduje się obelisk upamiętniający odwiedziny w tym miejscu F. Chopina, cesarza Józefa II i 6 prezydenta USA J.Q.Adamsa.
Potem można iść pasem granicznym na Szerlich (czeskie schronisko Masarykova Chata) i dalej na najwyższy szczyt po czeskiej stronie Velka Destna. Albo zjechać single trackiem aż do Dusznik.
najbardziej znany ośrodek narciarski w Kotlinie Kłodzkiej w zimie (ponad 20 wyciągów i 6 kolei linowych) i rowerowy w lecie - liczne zawody narciarskie, snowboardowe, rowerowe, zloty motocyklowe, cykliczne festyny itp., szlaki turystyczne, biegówkowe i rowerowe po polskiej i czeskiej stronie. Jedyne miejsce w Polsce z rewelacyjnym zdrowotnie mikroklimatem podobnym do alpejskiego. Słynne unikalne Torfowisko, nowa wieża widokowa na Orlicy, itd., itd..
Inne atrakcje do poczytania na stronie www.zieleniec.pl. Kto by tam nie znał Zieleńca ;-)
Do sprzedania działka 3118 m2 z prawomocną decyzją o pozwoleniu na budowę dwóch budynków apartamentowych wraz z infrastrukturą towarzyszącą.
Położenie na początku Zieleńca, w okolicy niedawno otwartego "Przystanku Alaska" czy domków "Campo resort", kolejne domki właśnie powstają.
Działka ma wjazd z głównej drogi biegnącej przez Zieleniec (DK389 "Autostrada Sudecka") przez wydzieloną i wykonaną już drogę wewnętrzną (mapka). Teren ma lekki skłon w kierunku północno-wschodnim (od szosy w dół w kierunku lasu), apartamenty na górnych kondygnacjach budynków będą miały widok na pasma okalające Kotlinę kłodzką.
W odległości 300-400 m pierwsze wyciągi - kompleks narciarski "Mieszko" i "Hotel Zieleniec", jeden z największych obiektów noclegowych w miejscowości (restauracja, kręgielnia).
Mniej niż 50 m do ratrakowanych tras biegowych po drugiej stronie szosy - w miejscu oznaczonym "Kamieniem Rübartscha" naprzeciw "Alaski" zaczyna się szlak na Orlicę, najwyższy szczyt polskiej części Gór Orlickich, gdzie powstała nowa wieża widokowa i znajduje się obelisk upamiętniający odwiedziny w tym miejscu F. Chopina, cesarza Józefa II i 6 prezydenta USA J.Q.Adamsa.
Potem można iść pasem granicznym na Szerlich (czeskie schronisko Masarykova Chata) i dalej na najwyższy szczyt po czeskiej stronie Velka Destna. Albo zjechać single trackiem aż do Dusznik.
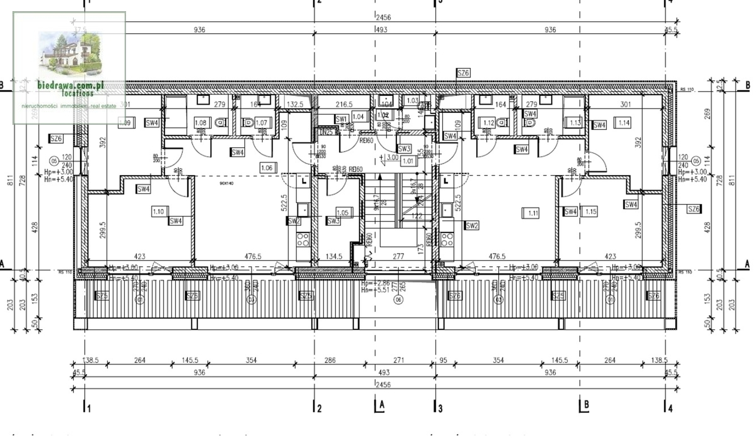
Działka posiada prawomocne pozwolenie na budowę dwóch budynków o powierzchni użytkowej 1135 mkw, z której można wygospodarować 900 mkw PUMu. W budynkach jest 15 apartamentów plus 90-metrowe pomieszczenie klubowe, które można przekształcić w kolejny apartament. Przy drobnych zmianach w ramach tego PnB można przekroczyć 1000 mkw PUMu.
Na działce wykonano już następujące prace: studnia z pozwoleniem wodnoprawnym, płyta parkingowa, cztery zbiorniki szamba z podłączeniami, drogi, dokumentacja wykonawczą. Łącznie koszt tych prac wyniósł ok. 600 tysięcy złotych.
W grudniu 2023 wykonany został kosztorys inwestorski na kwotę 6,5 mln netto za stan deweloperski,
który został w połowie 2024 potwierdzony przez potencjalnego generalnego wykonawcę za wykonanie stanu deweloperskiego apartamentów a części wspólnych na gotowo. Niestety potencjalny partner strategiczny nie zdołał zgromadzić środków i zapadła decyzja o sprzedaży projektu.
Oczekiwana cena za działkę z wykonanymi pracami to 2,2 mln zł,
co daje 2 444 zł na metr PUMu.
Na sąsiedniej działce o pow 3008 m2 trwają prace nad uzyskaniem decyzji o warunkach zabudowy na hotel 30- 35 pokoi z zaplecze SPA i restauracją. W razie zainteresowania nabywcy działki z PnB, ta druga też może zostać sprzedana, co poszerza możliwości inwestycyjne.
Oferta na wyłączność.
Kontakt Paweł Biedrawa, licencja zawodowa nr 7471, tel. 601 66 98 65
Więcej ofert na www.nieruchomosci-zieleniec.pl i www.biedrawa.com.pl
Przedstawiane informacje nie stanowią oferty w rozumieniu Kodeksu Cywilnego, są jedynie zaproszeniem do zapoznania się z nieruchomością i zachętą do jej obejrzenia. Dane w ofercie mają charakter informacyjny; niektóre informacje pochodzą od osób trzecich i mogą zawierać drobne nieścisłości z przyczyn niezależnych od oferującego pośrednika.
Na działce wykonano już następujące prace: studnia z pozwoleniem wodnoprawnym, płyta parkingowa, cztery zbiorniki szamba z podłączeniami, drogi, dokumentacja wykonawczą. Łącznie koszt tych prac wyniósł ok. 600 tysięcy złotych.
W grudniu 2023 wykonany został kosztorys inwestorski na kwotę 6,5 mln netto za stan deweloperski,
który został w połowie 2024 potwierdzony przez potencjalnego generalnego wykonawcę za wykonanie stanu deweloperskiego apartamentów a części wspólnych na gotowo. Niestety potencjalny partner strategiczny nie zdołał zgromadzić środków i zapadła decyzja o sprzedaży projektu.
Oczekiwana cena za działkę z wykonanymi pracami to 2,2 mln zł,
co daje 2 444 zł na metr PUMu.
Na sąsiedniej działce o pow 3008 m2 trwają prace nad uzyskaniem decyzji o warunkach zabudowy na hotel 30- 35 pokoi z zaplecze SPA i restauracją. W razie zainteresowania nabywcy działki z PnB, ta druga też może zostać sprzedana, co poszerza możliwości inwestycyjne.
Oferta na wyłączność.
Kontakt Paweł Biedrawa, licencja zawodowa nr 7471, tel. 601 66 98 65
Więcej ofert na www.nieruchomosci-zieleniec.pl i www.biedrawa.com.pl
Przedstawiane informacje nie stanowią oferty w rozumieniu Kodeksu Cywilnego, są jedynie zaproszeniem do zapoznania się z nieruchomością i zachętą do jej obejrzenia. Dane w ofercie mają charakter informacyjny; niektóre informacje pochodzą od osób trzecich i mogą zawierać drobne nieścisłości z przyczyn niezależnych od oferującego pośrednika.
- od kiedy dostępna: 2025-10-13
- powierzchnia: 3118 m2
- kształt działki: prostokąt 70 x 44 m
- ogrodzenie: nie ogrodzona
- dojazd: asfaltowy
- media: prąd, szambo, woda
- okolica: las, niska zabudowa, sklep spożywczy, spokojna okolica, w górach
Dane kontaktowe

biedrawa.com.pl -- locations
ul. Tadeusza Kościuszki 34
50-012 Wrocław
woj. dolnośląskie
tel: +48 601 669 865
numer licencji: 7471










